CRE(企業不動産)戦略で明日の企業を考える
お問い合わせ・資料請求
〒683-0823 鳥取県米子市加茂町2丁目113番地
加茂町ビル2F(米子市役所前)
0120-77-6966
営業時間 8:30~17:30(土日祝日定休)
メールでのお問い合わせはこちら
トップ
『家族信託』など各種取扱業務のご案内
企業向け不動産サービス
売買物件
賃貸物件
売りたい
買いたい
『家族信託』など各種取扱業務のご案内
企業向け不動産サービス
売買物件
賃貸物件
売りたい
買いたい
会社案内
事業用不動産
投資用不動産
仲介について
お問い合わせ
トップ
賃貸物件
賃貸物件詳細
トップ
賃貸物件
駐車場
河崎月極駐車場
更新日 : 2025-12-02
1区画空きあり。お気軽にお問い合わせください。
アクセス
最寄駅:JR境線河崎口駅 より 500 m (徒歩 7 分)
所在地
鳥取県米子市河崎1094-1
Google マップで表示
賃料
4,400
円
敷金
-
礼金
-
前の画像
| 1 / 6 |
次の画像
外観
前の画像
| 2 / 6 |
次の画像
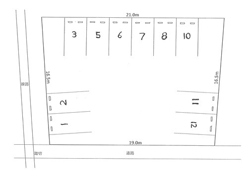
区画図
前の画像
| 3 / 6 |
次の画像
外観
前の画像
| 4 / 6 |
次の画像
外観
前の画像
| 5 / 6 |
次の画像
外観
前の画像
| 6 / 6 |
次の画像
外観
印刷用ページ
メールでお問い合わせ
物件詳細情報
戸数・区画数
10 (空 1)
その他費用
仲介手数料 4,400円、口座振替手数料(月額) 220円
引渡
2025/10 中旬
取引態様
仲介
印刷用ページ
メールでお問い合わせ
このページの先頭に戻る